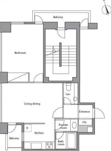
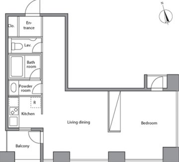
Plan
レジディアタワー麻布十番の間取り
シングルからファミリーまで
多彩なラインナップ
多彩なラインナップ
レジディアタワー麻布十番は、東京都港区三田1丁目に位置する高級賃貸タワーマンションで、地下2階・地上25階建て、総戸数113戸の規模を誇ります。
多様なライフスタイルに対応するため、1K~3LDKの幅広い間取りラインナップである他、メゾネットなどの特徴的でおしゃれな間取りも揃っています。
レジディアタワー麻布十番は、多様な間取りプランと高品質な設備を提供し、シングルからファミリーまで幅広いニーズに対応しています。都心での快適な生活を求める方にとって、理想的な住まいです。
